ピージーハウス岐阜
コンセプト
イベント・見学
お近くの展示場
PGパック
PGパック平屋
施工実例
来場予約
資料請求
PG HOUSEの家づくり
耐震等級3を取得した地震に強い家
全棟ZEH基準超えのG2基準
完全自由設計
月々3万円の家計に優しい家
充実保証・アフターサポート
商品と事例
店舗・モデルハウス
PGパック
PGパック平屋
施工事例・お客様の声
イベント・土地・お知らせ
イベント情報
土地情報
お知らせ
家づくりコラム
私たちについて
会社概要
スタッフ紹介
ご予約・お問合せ
来場予約
お問い合わせ・資料請求
予約受付中
\ 期間限定来場特典あり /
イベント・見学会情報
プライバシーポリシー
サイトマップ
2ndfloor
PGパック
忙しいあなたに!
家事が楽な暮らしの導線
コミコミプランです
14もの仕様がすべて標準装備
建物価格
自由設計
耐震等級3
制震ダンパー
長期
優良住宅
超ZEH
太陽光
5.46kw
Heat20
G2
気密測定
天井・壁
ウレタン吹付断熱
第一種 全熱交換 換気システム(ダクトレス)
オール樹脂サッシ+トリプルガラス+アルゴンガス
全室LED照明
60年保証
地震建替え
100%保証
24時間
365日対応
詳しいご説明に入る前に
私たちPG HOUSEはこれまで、“岐阜県で一番のコストパフォーマンス”をひたむきに目指してきました。
だからこそ、ホームページでお伝えしたいことも盛り沢山。
通常の住宅会社さんと比べると長めな説明が必要となってしまいました。
ですが、その全てが私たちがお客様へお伝えしたいこと。
「全部読み切れない・・・!」という方は、ぜひ店舗またはモデルハウスへお越しください。
スタッフ一同、心よりお待ちしております。
店舗・モデルハウスをみる
STYLE
そんな
お
客
様
の
ご
要
望
から
PGパック
は生まれました
耐震性・間取りの自由度・
断熱性・気密性など…
幸せに暮らすために必要な設備を
全て標準装備に。
多くのご家族の理想のマイホームに
対する1つの答えとして
PG HOUSEがご提案する住まいです。
STRUCTURE
地震に強い超耐震構造
震度7相当に耐える耐震等級3を取得した地震に強い家
耐震等級3取得
ハイブリッド
パネル工法
制震ダンパー
地震保障100%
ZEH
高気密・高断熱
全棟ZEH超えのG2グレード
オール樹脂サッシ+トリプルガラス+アルゴンガス
オール電化・
エコキュート
高気密
高断熱
DESIGN
完全自由設計
あなたの憧れ・理想に寄り添う
間取り決め
図面作成
SYSTEM
太陽光発電システム
家賃並みの月々支払いを実現する
発電
シミュレーション
出力保証30年
5.46kw
その他にも
充実した住宅設備
が標準装備!
本体価格・自由設計
耐震等級3取得
長期優良住宅認定
第一種 全熱交換
換気システム(ダクトレス)
ハイブリッドパネル工法
制震ダンパー
太陽光発電5.46kw
ウレタン吹付断熱
床断熱材
オール樹脂サッシ+トリプルガラス+アルゴンガス
全棟気密測定(C値0.5以下)
ハイドア
ガルバリウム屋根
断熱玄関ドア
カラー豊富な玄関タイル
オール電化&エコキュート
LED照明
キッチン&食洗機
高断熱浴槽・システムバス
シャワートイレ
スタイリッシュ3面鏡洗面化粧台
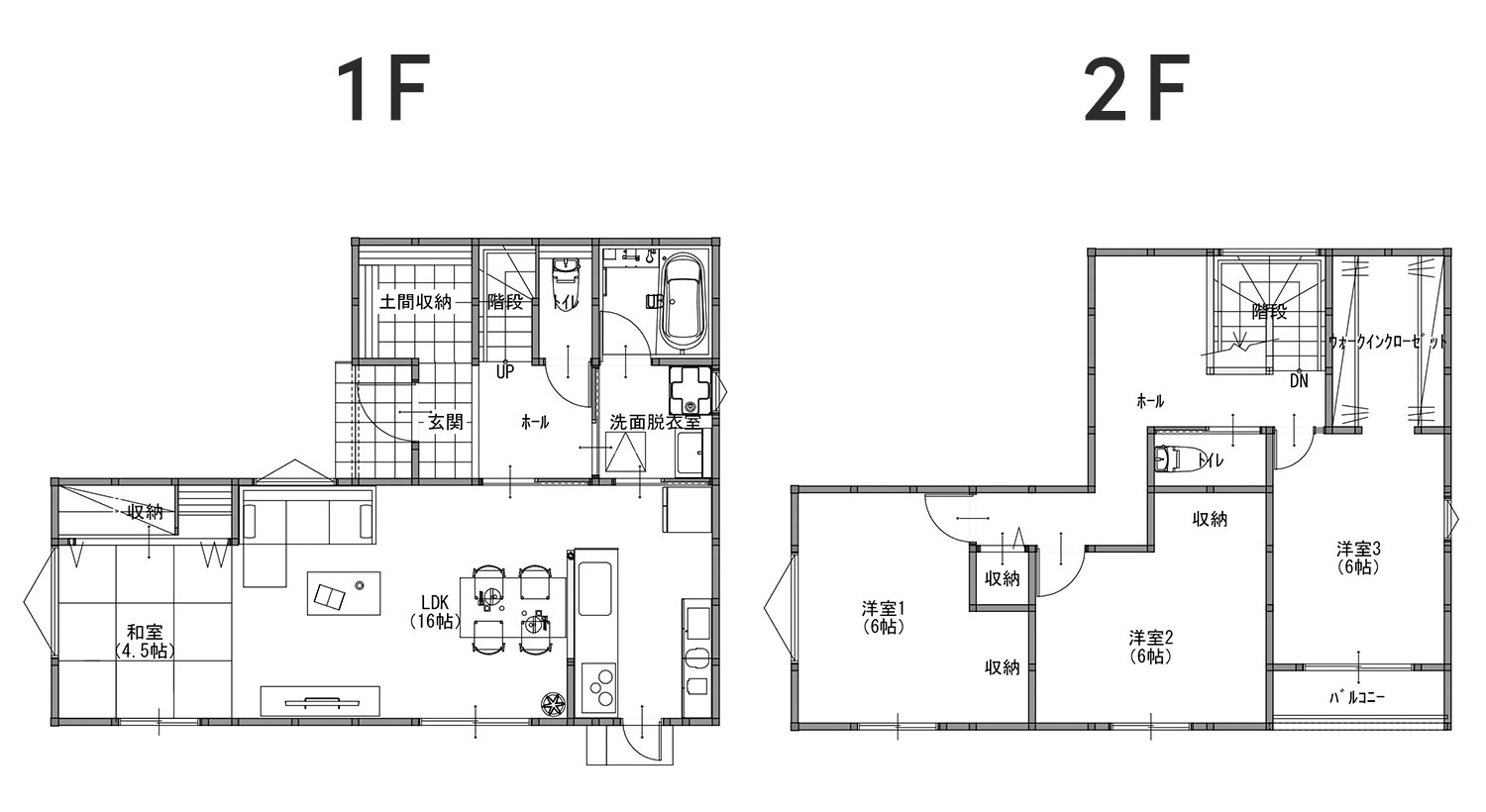
Plan
ご家族に
ベストなプラン
PG HOUSEでは、ご家族の暮らしにとって
ベストな間取りをのご提案を、
プロの設計士監修のもと
1棟1棟プランニングをし、ご提案いたします。
豪華仕様がセットの
コミコミ価格
で
26
坪プラン
1,527
万円~
(税込:
1,680
万円~)
28
坪プラン
1,587
万円~
(税込:
1,746
万円~)
30
坪プラン
1,671
万円~
(税込:
1,838
万円~)
32
坪プラン
1,755
万円~
(税込:
1,930
万円~)
34
坪プラン
1,839
万円~
(税込:
2,023
万円~)
36
坪プラン
1,923
万円~
(税込:
2,007
万円~)
26
坪
PGパック参考プラン
1,527
万円(税抜)
1,680
万円(税込)
月々
30,887
円(税抜)
33,982
円(税込)
太陽光発電5.46kw標準搭載
28
坪
PGパック参考プラン
1,587
万円(税抜)
1,746
万円(税込)
月々
32,100
円(税抜)
35,317
円(税込)
太陽光発電5.46kw標準搭載
30
坪
PGパック参考プラン
1,671
万円(税抜)
1,838
万円(税込)
月々
33,800
円(税抜)
37,177
円(税込)
太陽光発電5.46kw標準搭載
32
坪
PGパック参考プラン
1,755
万円(税抜)
1,930
万円(税込)
月々
35,499
円(税抜)
39,038
円(税込)
太陽光発電5.46kw標準搭載
34
坪
PGパック参考プラン
1,839
万円(税抜)
2,023
万円(税込)
月々
37,198
円(税抜)
40,919
円(税込)
太陽光発電5.46kw標準搭載
36
坪
PGパック参考プラン
1,923
万円(税抜)
2,115
万円(税込)
月々
38,897
円(税抜)
42,983
円(税込)
太陽光発電5.46kw標準搭載
期間限定キャンペーン実施中!
今すぐ来場予約
期間限定キャンペーン実施中!
今すぐ来場予約
PG HOUSE岐阜
PGパック
カタログ
請求
見学・来場
WEB予約
イベント
参加予約
資料請求
来場予約